• 42.7040
  • 50.0904
  • 57.2166

Mugla Ortaca Mergenli 417 M2 Zonierung Projekt Bereit Land Zum Verkauf

LandZu Verkaufen

Mugla Ortaca Mergenli 417 M2 Zonierung Projekt Bereit Land Zum Verkauf

LandZu Verkaufen
  • Immobilienpreis
    ₺ -
  • Immobiliengeschichte
    05-12-2022
  • Immobilien ID
    1322
  • Immobilienbereich
  • Status der Immobilie
    Zu Verkaufen
  • Eigenschaftstyp
    Land
  • Gesamt m²
    417m²
  • Verfügbar m²
    100m²
  • Entwicklungsstatus
    Gehäuse
  • Kaks - Präzedenzfall
    % 15 / 30
  • Gabari - Meter
    6.50
  • Tatstatus
    Freistehende Pakete
  • Grundgebühr
    Nein
  • Stellplätze
    Ja
  • Bodenuntersuchung
    Spezifiziert
  • Gutschriften Berechtigt
    Ja
  • Geeignet Für Swap
    Nein

Beschreibungstext

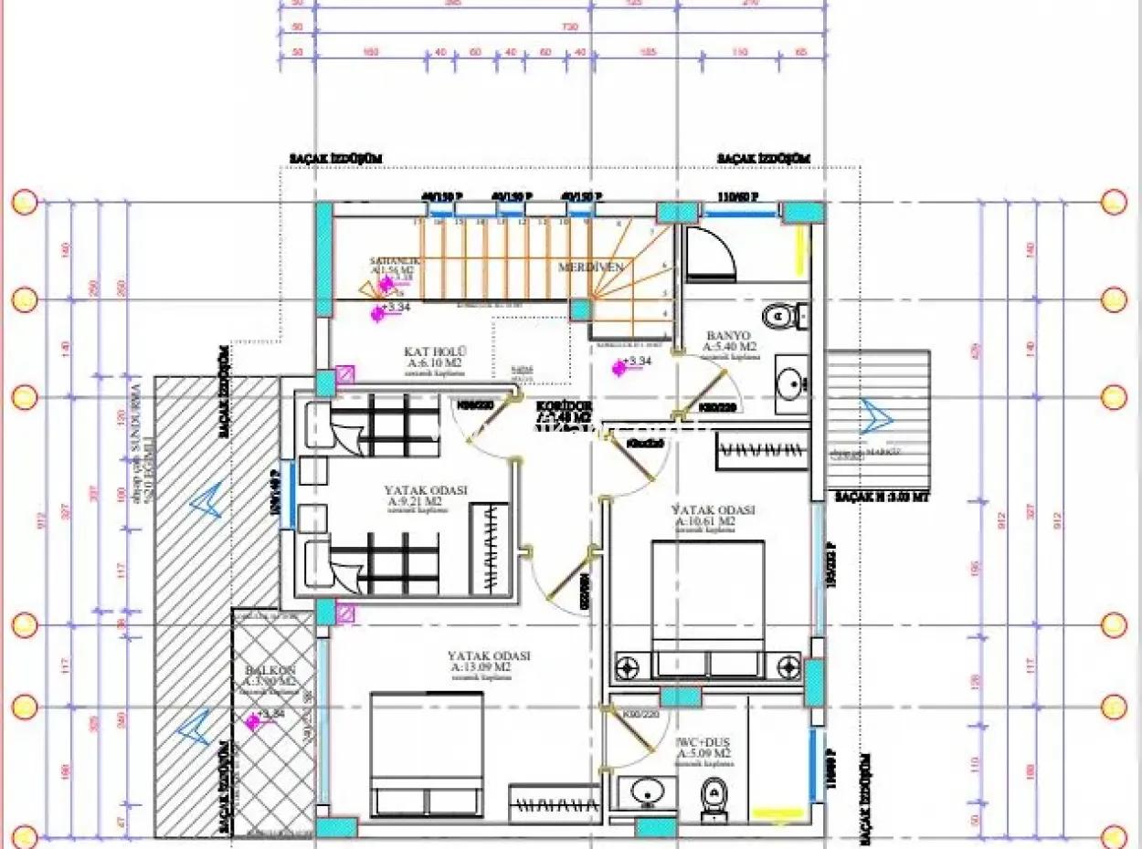
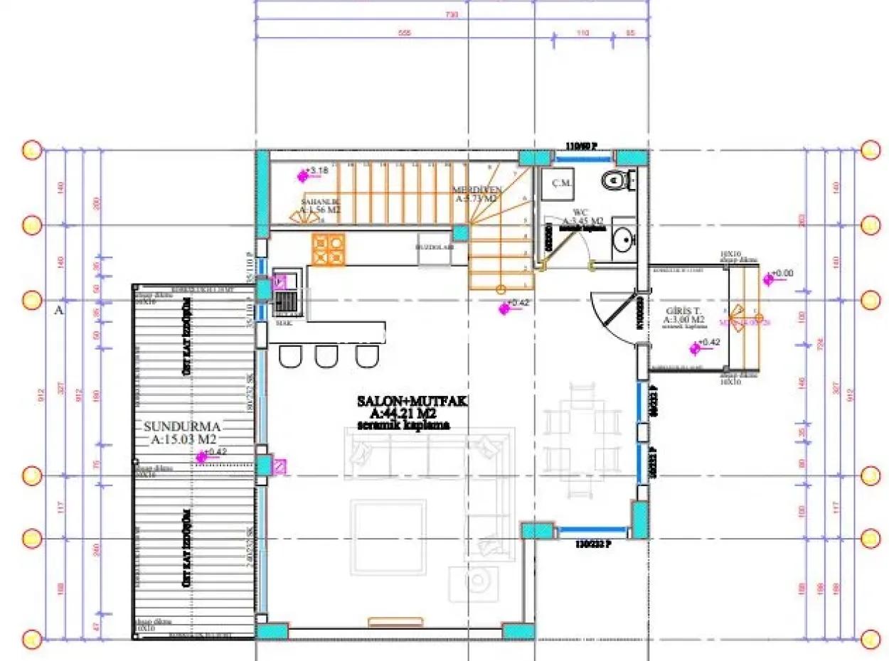
Mugla Ortaca Mergenli Ortaca Gemeinde genehmigt 417 m2 % 15 / 30 2 Stockfläche Zonierung Land zum Verkauf. Eingelöste Tat. 100 m2 Duplex-Villa Projekt von der Gemeinde genehmigt ist bereit für das Land. Amerikanische Lounge und Küche 3 Schlafzimmer 2 Badezimmer wc li. Das Projekt kann saniert werden. In der Nähe befinden sich der Strand Sargerme und der Flughafen Dalaman. 

Der richtige Weg nach Hause

In der Region Mugla sind alle Arten von Immobilien wie Zonierung, unbebaute, investitionsfreundliches, Gewerbeland, Grundstücke für Böden, Weinberge, Gärten, Zitrusfrüchte, Villenurlaub, Professionalität ist nur einen Anruf entfernt für Ihre Suche nach großen Hotels am Meer. Mit unserem internationalen preisgekrönten Unternehmen mit 28 Jahren Geschäftserfahrung helfen wir Ihnen, Ihre Immobilien- und Investitionsbedürfnisse zu erreichen. Yryan da Tägliche und wöchentliche freistehende Villen in Mugla und seinen Bezirken können auch nach Urlaubsvergnügen gesucht werden.

Türkische Ortaca Whatsapp +90 541 966 85 49

Türkisch Dalyan Whatsapp + 90 533 498 90 90

Deutsch sprechen Whatsapp +90 531 322 47 47

Speak English Whatsapp +90 507 954 38 90

Наяима Ямур Whatsapp +90 536 834 23 85

Merkmale

  • Allgemeine Eigenschaften
    Viele
    Eckparzelle
    Stellplätze
    Projektiert
  • Infrastruktur
    Reinigung
    Natural Gas
    Elektrisch
    Abwasser
    Industrielle Elektrizität
    Bohren & Gut
    Wasser
    Telefon
    Straße Nicht Geöffnet
    Straße Geöffnet
    Keine Straße
    Bodenuntersuchung
  • Lage
    In Der Nähe Der Hauptstraße
    Auf Der Straße
    In Der Nähe Der Straße
    Meer
    In Der Nähe Des Meeres
    In Der Nähe Des Flughafens
    In Der Nähe Der Autobahn
    Öffentliche Verkehrsmittel
  • Ansicht
    Bosporus
    Straße
    Berg
    Meer
    Natur
    See
    Stadt
    Fluss
    Park
    Tal
    Grünfläche

Karte

Die immobilie wird insgesamt 50.069 angezeigt.
qrcode

Land Zu Verkaufen

Mugla Ortaca Mergenli 417 M2 Zonierung Projekt Bereit Land Zum Verkauf
Immobilien ID: 1322

Mugla Ortaca Mergenli 417 M2 Zonierung Projekt Bereit Land Zum Verkauf

qrcode
  • Immobilienpreis
    ₺ -
  • Immobiliengeschichte
    05-12-2022
  • Immobilien ID
    1322
  • Immobilienbereich
  • Status der Immobilie
    Zu Verkaufen
  • Eigenschaftstyp
    Land
  • Gesamt m²
    417m²
  • Verfügbar m²
    100m²
  • Entwicklungsstatus
    Gehäuse
  • Kaks - Präzedenzfall
    % 15 / 30
  • Gabari - Meter
    6.50
  • Tatstatus
    Freistehende Pakete
  • Grundgebühr
    Nein
  • Stellplätze
    Ja
  • Bodenuntersuchung
    Spezifiziert
  • Gutschriften Berechtigt
    Ja
  • Geeignet Für Swap
    Nein

Beschreibungstext

Mugla Ortaca Mergenli Ortaca Gemeinde genehmigt 417 m2 % 15 / 30 2 Stockfläche Zonierung Land zum Verkauf. Eingelöste Tat. 100 m2 Duplex-Villa Projekt von der Gemeinde genehmigt ist bereit für das Land. Amerikanische Lounge und Küche 3 Schlafzimmer 2 Badezimmer wc li. Das Projekt kann saniert werden. In der Nähe befinden sich der Strand Sargerme und der Flughafen Dalaman. 

Der richtige Weg nach Hause

In der Region Mugla sind alle Arten von Immobilien wie Zonierung, unbebaute, investitionsfreundliches, Gewerbeland, Grundstücke für Böden, Weinberge, Gärten, Zitrusfrüchte, Villenurlaub, Professionalität ist nur einen Anruf entfernt für Ihre Suche nach großen Hotels am Meer. Mit unserem internationalen preisgekrönten Unternehmen mit 28 Jahren Geschäftserfahrung helfen wir Ihnen, Ihre Immobilien- und Investitionsbedürfnisse zu erreichen. Yryan da Tägliche und wöchentliche freistehende Villen in Mugla und seinen Bezirken können auch nach Urlaubsvergnügen gesucht werden.

Türkische Ortaca Whatsapp +90 541 966 85 49

Türkisch Dalyan Whatsapp + 90 533 498 90 90

Deutsch sprechen Whatsapp +90 531 322 47 47

Speak English Whatsapp +90 507 954 38 90

Наяима Ямур Whatsapp +90 536 834 23 85